Жилой комплекс "СТАРТ" в Жилгородке

Тема в разделе "Новостройки", создана пользователем Mikola, 01.04.09.

  1. evian

    evian Активный участник

    1.125
    1
    Главное чтобы жильцы не оказались быдлом и не стали развешивать кучу мусора на фасады и балконы.
     
  2. colorprint

    colorprint Активный участник

    19.646
    51
    Тогда совсем на общагу будет дом похож :d
     
  3. icefrog

    icefrog Активный участник

    590
    0
    К сведению, при 100% оплате цена за квадратный метр выходит 37.5тыс. (Старт)
    Очень неплохие там 3-шки именно для жилья, очень хорошо расположен дом, есть двор, есть парковка, есть рядом стоянка, школы, дет. сады, 5 минут до Парк-Хауса, ±10-12 мин по Жукова до центра, кто там что-то кричал про Спартановку....
    Алконавты есть везде, у меня такое ощущение что тут собрание интеллигентов, не хватает блекджека и проституток))))
    Тот кто советуют Олежкину слободу, uncomments, съездите сами и посмотрите как расположен там дом (напоминает станцию вокзала между двумя полотнами, остается токо сделать таблички 1,2 путь и повесить расписание поездов.
    Олимп - да хорошее место, центр города, но жд пути и стук колес... и звук дороги удручает.
    А тем кто говорит про заводы и прочее езжайте в деревни и живите там.
     
  4. rubin08

    rubin08 Участник

    310
    0
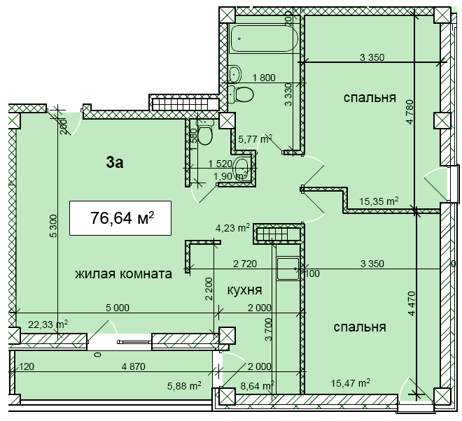
    что же в этой планировке хорошего? ИМХО за 2,9млн можно было и получше планировку сделать, кухня просто рассмешила.
     

    Вложения:

    • Start-3k-76.GIF
      Start-3k-76.GIF
      Размер файла:
      31,5 КБ
      Просмотров:
      871
  5. Berman

    Berman Читатель

    9.316
    1
    рассею ваши иллюзии
    район относится к "цыганской" школе к сведению (учитывая приоритетное комплектование по месту регистрации), сад тоже внутри цыганского если по территориальной принадлежности. из близлежащих школ еще 101. остальные не так уж и близко.
    хотя 15-20 минут пешком для ребенка будет даже полезно.

    в объезд. ни дайбох встать в пробку в ЧП на землячке или у комплекса.

    ночью. в реальности от получаса.
     
  6. rubin08

    rubin08 Участник

    310
    0
    не сочтите за рекламу, просто у самих выбор стоял Старт или Санаторный. 3-ка стоит те-же 2900 только метров 88
     

    Вложения:

  7. icefrog

    icefrog Активный участник

    590
    0
    Ну начнем с того что внутри нет ниодной несущей стены поэтому дели кухню по метражу как вздумается

    ---------- Сообщение добавлено 15.05.2012 21:34 ----------

    Berman, на красном всю жизнь живу сроду не знал что от землячки ехать пол часа до комсы :d:d
    Землячка - Белый Аист - 8 минут, 30 мин ваши На мопеде если только :hah:
    (вот если с комсы на землячку особенно в районе 5-6 часов, то да пробки бывают)
    Реальная проблема там только с окнами и непонятным контингентом людей.
    Вас послушаешь народ подумает, что сейчас в Дзержинке живут алкоголики и цыгани :)
     
  8. PanProfessor

    PanProfessor Активный участник

    4.297
    43
    что правда чтоль??? а я живу и не сном ни духом не слышу, наверное потому что Олимп это не только дом на углу, а еще и дом на Донецкой, а здесь никакой железки не слышно, а вот у старта трамвай прям под окнами, кайф наверное.
     
  9. nosferatos

    nosferatos Читатель

    31.496
    2
    я вам могу за такие места в любом районе города поговорить.
     
  10. icefrog

    icefrog Активный участник

    590
    0
    Чтобы не быть голословным тут явно можно наблюдать и трамвайные пути и ЖД пути неподалеку от Олимпа
    http://maps.yandex.ru/-/CNg9bE1S

    скорее наоборот ))) а о том что железки не слышно это вы можете рассказывать покупателям в олежкиной слободе вместе с риелторами))

    Вот тут согласен :)
     
  11. Афиноген

    Афиноген Активный участник

    18.087
    2.855
    После примерно года проживания в Олимпе привыкаешь и просто перестаешь замечать шум поезда и трамвая, так что ни каких проблем. А вот преимущества радуют и после трех лет проживания.
     
  12. rubin08

    rubin08 Участник

    310
    0
    причем ближе чем к Старту)
     
  13. Бета

    Бета Активный участник

    26.172
    3.021
    Да ладно. До 101 школы минут 5.
     
  14. Berman

    Berman Читатель

    9.316
    1
    без пробок за пятьнадцать минут. только ты сперва землячку проедь в час пик. ко мне на землячки 11 в районе 17 часов пацан со стройбери (ныне ситилинк) както минут 40 ехал.
    ну чо, в соседях у вас как раз 3 или 4 цыганских дома. один из них барона. так что цыгане там таки живут.

    ---------- Сообщение добавлено 16.05.2012 13:09 ----------

    я в данном случае не про 101ю, а про 7й лицей и 40ю. ну наверху еще 128я есть
     
  15. icefrog

    icefrog Активный участник

    590
    0
    к счастью жителей там поездов нет, как в олимпе.

    Ну вот на мазохизм это похоже) Какие преимущества, вид на дорогу и пыль в окна? )))

    Berman, я согласен, но если рассматривать пробки вы будете из центра ехать до любого другого района не менее 30 минут. Пробки у нас везде
     
  16. Афиноген

    Афиноген Активный участник

    18.087
    2.855
    Ну да, преимущества все в Старте. По моему вы сами себя убеждаете, что ЖК на окраине города, есть самое лучшее место для жилья.
     
  17. icefrog

    icefrog Активный участник

    590
    0
    Афиноген , угу есть такое, но у Старта есть свои недостатки, как заметили ранее
    1) Цыга, на которой в 90х активно закупались ))))
    2) Текущей контингент людей, который очень похож на контингент людей к примеру на горном поселке тракторного, но сейчас там все изменилось много молодых семей.
    3) Нет как таковых парков для прогулки
    4) Ночью опаснее гулять чем к примеру на Красном или Спарте :)
     
  18. PanProfessor

    PanProfessor Активный участник

    4.297
    43
    для особо непонятливых еще раз повторю. Олимп состоит из трех домов, два из которых действительно очень близко к железке а третий стоит за этими двумя за котельной и за администрацией, до железки от него не 50 метров, а стоящая перед ним 25этажка полностью отражает все звуки от железки. так понятнее? если вы чегото не знаете не стесняйтесь этого признать.
    и, да, от моего дома до трамвая расстояние в два раза больше (это минимум) чем от старта до трамвая.
    http://maps.google.ru/maps?q=48.713...Ag&hnear=Совнаркомовская+ул.&t=h&z=16&iwloc=A это олимп
    http://maps.google.ru/maps?q=48.767...n=0.004201,0.009645&num=1&t=h&z=17&iwloc=near а это старт
    если у кого то топографический кретинизм то - "бывает"
     
  19. Berman

    Berman Читатель

    9.316
    1
    тогда зачем оспаривали? если я изначально писал про пробки. дело в том что 8, 15 или 11 минут как яндекс говорит не имеет значения в отрыве от того, КОГДА вы будете ехать. обычно это происходит в час пик - с работы на работу (а значит пробки).
    там кстати по вечерам так тихо ;)
     
  20. Афиноген

    Афиноген Активный участник

    18.087
    2.855
    "Тихо аж жуть"
     
  21. Бета

    Бета Активный участник

    26.172
    3.021
    та же фигня. Хошь засеку время как на дачу пойду.;)
     
  22. Berman

    Berman Читатель

    9.316
    1
    не та же. можешь засекать, но у меня дом как раз за "стартом" (вулиця в него упирается) так что скока до 40й, 70й и 128й - прекрасно помню. тем более что в одну из них проходил 5 лет, во вторую - 2.

    больше скажу. до 40й от "старта" (если верить 2гису) 0.85км. средняя скорость человека пешком - 5 км-ч (итого ~ 10 минут) прогулочным как раз 15 и получится. до 70й - 1.07 км со всеми поворотами. до 128-й 1.14 км
    но это все фигня. район до полотна территориально "принадлежит" цыганской школе.
     
  23. Бета

    Бета Активный участник

    26.172
    3.021
    Стемпковской штоле?
     
  24. bouvreuil34

    bouvreuil34 Участник

    104
    0
    Ну что, дом сдан?
     
  25. lemmus

    lemmus Активный участник

    5.575
    2
    да щас застеклят балконы кто во что горажд и будет хрущеба. Такое в Волжском с флагмановскими домами творится - ужОс просто.
     
  26. SFY

    SFY Участник

    259
    1
    Ну Флагманские дома засрать не стыдно - они и так выглядят как конструктор лего :hah:

    Что там слышно со Старт-3? Сроки, цены, планировки? Проектную декларацию уже выложили:
    http://www.startdom.ru/declaration3.html
     
  27. colorprint

    colorprint Активный участник

    19.646
    51
    Сейчас доллар как до 40 догонит - и загнутся проекты (

    ---------- Сообщение добавлено 01.06.2012 18:39 ----------

    Ну это от ТСЖ и УК тоже зависит... На Батальонной например вроде запрещают переделывать остекление ) Хотя сплит-системы ставят (ну это куда без них... хотя в домах претендующих на какой-то статус можно было бы и центральное кондиционирование сделать)
     
  28. хочу_вот_сказать

    хочу_вот_сказать Активный участник

    8.377
    18
    colorprint, в волгограде нет ни одного дома с центральным кондиционированием, или я заблуждаюсь? уж в "элитных" парусах-то как без нее обошлись непонятно.
     
  29. colorprint

    colorprint Активный участник

    19.646
    51
    в Парусах кстати читал вроде что-то есть.... вентиляция что ли... без кондиционирования ))
    Ну экономят на всем что можно :( даже в "элитных" домах
     
  30. icefrog

    icefrog Активный участник

    590
    0
    Кто знает у них дом введён в эксплуатацию или нет?