Перепланировка

Тема в разделе "Ремонт и строительство", создана пользователем Everwesss, 05.12.10.

  1. О.

    О. Активный участник

    15.814
    57
    ОЧумелец, потому что это вариант для одного человека. А когда двое и совмещенный санузел-это хрень..хотя если они не стесняются какать друг при друге и все такое, тогда действительно
     
  2. tauro

    tauro Femme, tres femme

    15.325
    62
    Три человека - уже не маленькая. Во время ремонта в квартире решили не делать совмещенный санузел - тоже были воспоминания о хрущевках и нежелание стоять по утрам в очереди.
    А сейчас каждый из нас уходит из дома утром в разное время и вопрос о том, кто куда пойдет, отпал сам собой. И никогда не возникал, собсно.
    И теперь мы "за" совмещение. Это удобно, на самом деле. Ибо есть место не только для унитаза, но и для биде. А это, пардон, удобнее "заветного розового рулончика".

    ---------- Сообщение добавлено 05.12.2010 23:28 ----------

    Зачем? Судя по плану, там кухня большая. Стиралка+посудомойка удобно на кухне. Порошки-флакончики со смягчителем в одном шкафчике и все замечательно. Гладильная доска встроенная, и все дела.
     
  3. Бета

    Бета Активный участник

    26.139
    3.006
    по мне так абсолютно неудобно. Корзина для белья тоже на кухне стоять будет? Зашел в ванную, поснимал с себя одежду, покидал в корзину. Переложил в машинку. К тому же я в ванной и в тазу стираю, так что порошки должны быть под рукой. Я уже не говорю про шум от центрифуги.
    А глажу я там, где белье сохнет - на лоджии. Там же стоит корзина для высохшего белья. А если это делать на кухне, то и непоглаженное белье там же хранить придется.
     
  4. О.

    О. Активный участник

    15.814
    57
    tauro, ну это вы много работаете и утром вопроса не возникает..а вечером, по приходу, с учетом, что совместный вечер где-то с 18 ч. начинается, мне кажется, неудобно
     
  5. SilverClash

    SilverClash Активный участник

    3.293
    0
    ну у меня хоть что то в голове задержалось... :d
    А Вы не думали, что кто то встает и ложиться раньше? Я например иногда встаю очень рано утром, когда супруга еще спит, и я не хотел бы ее беспокоить тем, что я хожу из кухни в ванную, и т.п. Собственно я свое мнение озвучил, если бы я жил в однокомнатной квартире, у меня такой вопрос даже не возникал бы...
    ОЧумелец, то что вы не согласны, это еще не аргумент, и не надо переходить на личности :writer:
    глупо быть таким недальнозорким.

    ---------- Сообщение добавлено 05.12.2010 23:46 ----------

    все зависит от планировки.... у меня трешка, и там санузел находится между двумя спальнями... сейчас стиранлка на кухне, хочется перенести в санузел, но наличие шума рядом со спальнями смущает... так что не все так очевидно.

    ---------- Сообщение добавлено 05.12.2010 23:46 ----------

    кстати почему бы нет?
     
  6. tauro

    tauro Femme, tres femme

    15.325
    62
    Бета, нету у мну корзины, я сразу стираю. Даже пару вещей (трикотаж), сразу засуну и выстираю. Не накапливаю на стрику, в режиме "эконом" стираю. Но сразу.
    Шума нету у мну от центрифуги, хоть машине 12 лет.
    Мечтаю о другой машине - чтобы с функцией химчистки. Только она дорогая.

    О., утром вопроса не возникает, ибо я поздно ухожу. А прихожу в 22 часа. Я уже никому помешать не могу. И это вряд-ли измениться. Когда мы все дома, тоже проблем нет особых. Не замечалось.
     
  7. О.

    О. Активный участник

    15.814
    57
    tauro, ну это график такой..а когда стандартный, 9-18, будут толочься там...
     
  8. tauro

    tauro Femme, tres femme

    15.325
    62
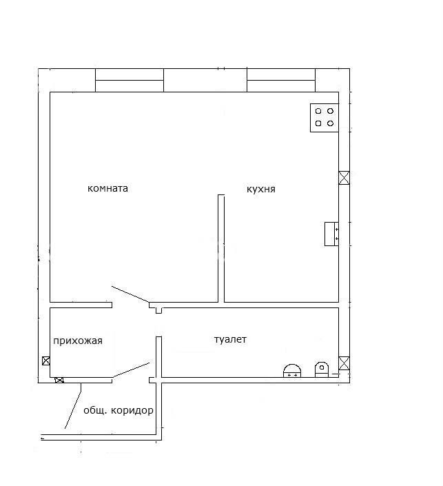
    О., да. Надо плясать от тех, кто там жить будет.
    Вот примерно то, что я имела в виду, когда написАла, что дверь можно перенести. Не "ах", но вполне по размерам поместится. А если раковину совсем маленькую взять, то и раковина тоже поместится.
     

    Вложения:

  9. ОЧумелец

    ОЧумелец Активный участник

    4.437
    49
    ...и грязное белье с носками.. :)
     
  10. SilverClash

    SilverClash Активный участник

    3.293
    0
    для этого не обязательно переносить дверь...

    ОЧумелец, кстати, у вас дети есть? где Вы будете сидеть, пока ребенок спит в комнате? На кухне? А если приспичит? :d

    ---------- Сообщение добавлено 06.12.2010 00:13 ----------

    что в этом такого? Если вы намекаете на запахи, то надо просто чаще менять белье и носки :d

    ---------- Сообщение добавлено 06.12.2010 00:14 ----------

    у меня корзина с бельем стоит на кухне вместе со стиралкой уже несколько лет... 3 года на предыдущей квартире, и уже почти пол года на новой, меня это как то не смущает...
     
  11. Бета

    Бета Активный участник

    26.139
    3.006
    Так потому и нет, что с/у раздельный. Пока.

    Потому что это неэстетично. Кухне - кухнево. Ванной - ванново.
     
  12. ОЧумелец

    ОЧумелец Активный участник

    4.437
    49
    если не переносить, то тоже самое и получится. представте, что у вас дверь справа - что изменится? - ничего. :)
    Душевую лучше было бы полукруглую - больше места и не спотыкаться об угол ;)
     
  13. Бета

    Бета Активный участник

    26.139
    3.006
    :d:d:d
     
  14. SilverClash

    SilverClash Активный участник

    3.293
    0
    интересно у вас понятие об эстетике?

    Бета,
    этот вопрос был адресован ОЧумелец,
     
  15. tauro

    tauro Femme, tres femme

    15.325
    62
    Бета, нет. Трое человек вполне способны поделить целые сутки, чтобы не мешать друг другу.
     
  16. ОЧумелец

    ОЧумелец Активный участник

    4.437
    49
    У меня пятеро, если кто не в курсе :shuffle: , но вопроса я не понял. Может потому, что у меня 2 санузла:p

    Вы по другому запоете, если вам пятеро сразу сдадут свои носки:d Про пеленки молчу - прошли их :)
    Думаю, вы преувеличиваете возможности этой кухни, чтобы туда все совать.

    ---------- Сообщение добавлено 06.12.2010 00:26 ----------

    Однозначно. Если гадостью не кормить, то ходить в туалет будут умеренно :d
     
  17. Бета

    Бета Активный участник

    26.139
    3.006
    опять же на работе можно часть оставить.:d

    ---------- Сообщение добавлено 06.12.2010 00:32 ----------

    у вас еще интересней. :)
     
  18. ОЧумелец

    ОЧумелец Активный участник

    4.437
    49
    Разумно. Для кухни перебор. Меня посудомойка напрягает.... Пусть шумит в постирочной (кладовке) или туалете. Особенно в ночь.
     
  19. Бета

    Бета Активный участник

    26.139
    3.006
    ОЧумелец, а я в ночь стирку не запускаю - соседи ругаются, что у них трубы и кран дребезжат.:d
     
  20. SilverClash

    SilverClash Активный участник

    3.293
    0
    не удивительно. Этот вопрос был к вопросу о раздельности.
    я переживаю меньше всего. для этого есть машинка.
    размеров на плане нету. моя была 5 кв.м., сейчас 9 кв.м. и ничего, везде все помещалось...

    а если выбирать - санузел через стенку от спальни, или кухня на другом конце квартиры?
     
  21. ОЧумелец

    ОЧумелец Активный участник

    4.437
    49
    Квартира с гулькин нос :) Человеку нужен большой санузел. Я предложил решение. Других задач не ставилось. Мы даже не знаем количество членов семьи и размеров помещений.... а уже разшумелись :)

    ---------- Сообщение добавлено 06.12.2010 01:02 ----------

    белое с черным стираешь одновременно?
     
  22. SilverClash

    SilverClash Активный участник

    3.293
    0
    это интересно как связано с детьми?
     
  23. а это тебе что написано???
    и незаконно!
    не смеши!
    а площади меньше, а перемещаться надо, летая...
     
  24. Вариант с барной стойкой!

    Вот так...
     

    Вложения:

  25. простите, что надо сделать???:writer:

    ---------- Сообщение добавлено 06.12.2010 03:28 ----------

    подтвердят, только с каких пор кухня или коридор стали жилыми???
    а я в доме Авиаторская 1а, домик не бюджетный далеко...
     
  26. а там кухня посередине квартиры была, детская только в дальнем углу от входа со стеной. Типа зала была отделена от типа прихожки фильдеперсовой этажеркой!
     
  27. SilverClash

    SilverClash Активный участник

    3.293
    0
    кто Вам сказал такую глупость? Могу назвать Вам адреса квартир, в которых подобная перепланеровка УЗАКОНЕНА. ВСе это делалось через суд, и довольно геморно, но сделать это реально.
    симысл этой перегородки стремиться к нулю.... лучше уж тогда совсем ее убрать. или сделать что то типа борной стойки - по крайней мере визуально будет казаться что комната НАМНОГО больше.

    ---------- Сообщение добавлено 06.12.2010 10:40 ----------

    там отдельный разговор... там если память мне не изменяет планировка двухуровневая... модет не во всех квартирах так, но там где я был, все же есть что то типа "прихожей"

    ---------- Сообщение добавлено 06.12.2010 10:41 ----------

    если вы о штеменко - то это на красном, а не на тулака.

    ---------- Сообщение добавлено 06.12.2010 10:44 ----------

    в этом доме вообще помоему меньше 100 метров квартир нету, или я ошибаюсь?
     
  28. 3.14-2.71

    3.14-2.71 Активный участник

    21.456
    203
    все это можно делать если плита электрическая. Если газовая, нельзя объединять с помещением для сна.
     
  29. SilverClash

    SilverClash Активный участник

    3.293
    0
    об этом я как то не знал... а где такое прописано? Поделитесь ссылочкой.
     
  30. 3.14-2.71

    3.14-2.71 Активный участник

    21.456
    203
    Вот нашел


    так что вопрос стартового топика можно считать закрытым -- такая перепланировка невозможна, и никто сейчас подписываться не будет. БТИ скорее всего отправит в суд, а суд нормативные документы трактует буквально.

    Насчет газовой плиты, я вероятно ошибся, но не уверен.

    Вот что нашел зато
    Речь идет о квартирах-студио, где нет кухни как таковой. Впрочем, СП имеет статус рекомендаций, а не норматива.