Продаю 2-к квартира ул. Санаторная срок сдачи IV квартал 2016

Тема в разделе "Продажа недвижимости", создана пользователем Медуза, 05.07.16.

  1. ди902

    ди902 Активный участник

    13.211
    44
    спасибо, пороюсь на их сайте.


    А вот даже спрашивать не буду во сколько вам обошелся ремонт всей квартиры. :d
     
  2. Бета

    Бета Активный участник

    26.135
    3.002
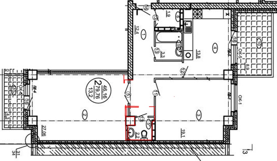
    Головач Лена, откуда такая форма санузла? Сами сделали?
     
  3. Головач Лена

    Головач Лена Активный участник

    10.304
    4.040
    Бета, да.
    увеличили за счет коридора (и тссс! частично за счет гостиной маленький кусочек отщипнули)

    перепланировка_мама.jpg

    но проект перепланировки утвердили до начала работ в администрации именно в таком виде.

    особенно, если учесть, что это от и до подарок родителям от моего братца. полное финансирование от покупки самих стен до финальных штрихов по мебелировке и технике.

    с меня только выбор исполнителей и авторский надзор над ними. ну и подбор материалов и мебели. Но так, чтобы это всё сочеталось с принципами разумной экономии)))

    в принципе, почти всё готово.
    мебель куплена и уже собрана. техничка тоже. отслись мелочи.
    29-го монтируют всю встройку в туалете и гардеробке. по результату их работы, вероятно, закажу ещё кое что в коридор.
     
  4. Медуза

    Медуза Активный участник

    559
    0
    Огого сколько написали)))Спасибо , за апп темы,уважаемые!:)

    На данный момент наш этаж уже готов, сдача будет в срок однозначно!
    Для покупателя бонус, поможем сделать электрику. :):):):)
     
  5. Dimanuga

    Dimanuga Активный участник

    27.825
    2.219
    Фото можно?
     
  6. Медуза

    Медуза Активный участник

    559
    0
    Вас что именно интересует? Строительная готовность этажей?
    [​IMG]
    Такое фото, только на на сегодняшний день Вас устроит? Я к вечеру сгоняю сфотаю
     
  7. Медуза

    Медуза Активный участник

    559
    0
    На сегодняшний день выложены все этажи.
    Окна застеклены на 90%, балконы готовы к застеклению. Стены оштукатурены до 6 этажа , так же навешаны радиаторы.
    Фото все кликабельны.
    [​IMG]

    Виды с окон и балкона. (окно зала и спальни смотрят на гору , балкон и второе окно зала на Кировский )
    [​IMG][​IMG][​IMG] [​IMG] [​IMG] :shuffle:
    [​IMG] [​IMG] В зале окно панорамное .
    Напротив дома находится действующий большой магазин Радеж. Около дома асфальтируется большая парковка для авто, равняется место под детскую площадку.
    [​IMG] [​IMG] [​IMG] [​IMG] [​IMG][​IMG]
    так будет застеклен балкон
    [​IMG]
     
  8. Медуза

    Медуза Активный участник

    559
    0
    В домах предусмотрено индивидуальное поквартирное отопление жилой части и отопление электроконвекторами помещений общего пользования.
    Девятиэтажные дома в комплексе оснащены грузопассажирскими лифтами.
    Высота потолков в жилых помещениях 2,7 м.

    Окна: производство АО «Биотех». ПВХ-окна из профиля REHAU, с установкой подоконников.

    Отопление и горячее водоснабжение: установка газовых настенных двухконтурных котлов, размещенных на кухне квартиры. Полная разводка трубопроводов в квартире предусмотрена в конструкции пола. В качестве отопительных приборов используются алюминиевые радиаторы. В домах установлено качественное отопительное оборудование от европейских производителей.

    Электроснабжение: монтаж электропроводки до квартирного щитка.

    Газоснабжение: подключение газового котла и подводка к газовой плите без ее установки, с установкой приборов учета газа.

    Жилой комплекс «Санаторный» - это современная малоэтажная застройка, расположенная в 15 км от центра города на границе Кировского и Советского районов Волгограда.

    Находится в экологически чистом районе, который является географическим центром города и обладает развитой инфраструктурой. В 5 минутах ходьбы от второй продольной магистрали, где находится остановка общественного транспорта.

    Для жителей «Санаторного» доступна развитая инфраструктура Кировского и Советского районов. В двух километрах от «Санаторного» расположены гипермаркеты «Лента», «Ашан», «Спортмастер», «М-Видео» и ТРЦ «Акварель», где можно найти все необходимое для дома, работы и отдыха. В10 минутах езды находятся учебные и медицинские учреждения: ВолГУ, Энергоколледж, КардиоЦентр, Перинатальный центр, Детская поликлиника №7, школы.

    Дома в микрорайоне «Санаторный» строятся из крупноформатного керамического поризованного камня ТЕРМОБЛОК и облицовываются керамическим кирпичом производства АО «Биотех». Поризованная керамика – это экологически чистый материал, не содержащий вредных примесей, обладает отличной звукоизоляцией, а поры, находящиеся внутри стенок керамических блоков, сохраняют тепло в зимний период и поддерживают отличный микроклимат в летнее время.
     
  9. Медуза

    Медуза Активный участник

    559
    0
    Дом готов, 15 ноября подают газ. Ремонты идут полным ходом!
     
  10. Медуза

    Медуза Активный участник

    559
    0
    всем спасибо! тему можно удалить .:)
     
  11. Dimanuga

    Dimanuga Активный участник

    27.825
    2.219
    Медуза, Сколько прибыль составила?
     
  12. Медуза

    Медуза Активный участник

    559
    0
    За скок взяла, за столько и продала) :d
    Это изначально была квартира на продажу без цели прибыли.:p:bigeyes: Так тоже бывает. Кстати есть еще однушка в первом доме. Но она уйдет надеюсь быстро.:shuffle: