Участок с домом на Ангарском

Тема в разделе "Продажа недвижимости", создана пользователем moDEATHt, 23.05.17.

  1. молодой

    молодой Активный участник

    916
    17
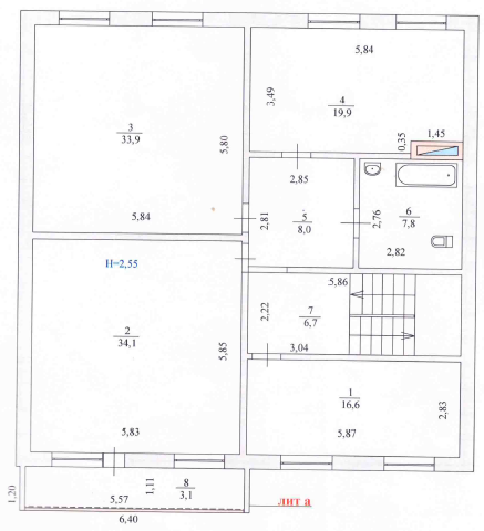
    Материал -керамзитобетон.
    Ремонт 2000х годов в основном (стенки, шкафы, диваны), получше кухня.
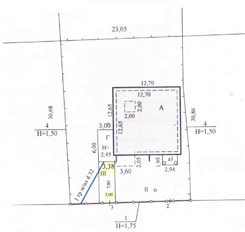
    На участке гараж металлический, заезд в него под машину. беседка из винограда со столом и скамейками, 14 плодовых деревьев (вишни, яблоки, персики, абрикос). Кстати, по плану земли 7 соток.Еще один металлический гараж за забором, напротив дома.
    На первом и втором этажах есть сплит-системы, окна в "основных" комнатах пластиковые.
    Лет с десяток назад начинали обкладывать облицовочным кирпичом, да на четверти дома деньги и кончились.
    Недалеко школа, 2 детских садика.

    Выложу здесь только планировку и пару фоток для представления общей ситуации. Теперь цену можно узнать? :)
     

    Вложения:

  2. pe2x

    pe2x Активный участник

    7.768
    66
    в спальне плитка по-диагонали, а ковер еще диагональней :d
     
  3. ToXa

    ToXa Активный участник

    4.255
    118
    ))) это еще что, а вот щука на люстре в кухне )))
     
  4. pe2x

    pe2x Активный участник

    7.768
    66
    она охотится на курицу без головы в сковородке
     
  5. молодой

    молодой Активный участник

    916
    17
    Там, вроде бы, был линолеум :d

    ---------- Сообщение добавлено 02.06.2017 14:35 ----------

    Фотографа обидеть может каждый, это и так лучшие фотки :gigi:
     
  6. молодой

    молодой Активный участник

    916
    17
    Расписал, все равно все молчат :eyes: